Prodaje se komforan trosoban stan u Bečićima, Budva.

€ 180 000

ID: 11/24

106 m2

Stan

3

2

Prodaje se komforan trosoban stan  u Bečićima, Budva.

Površina: 106 m2

Sobe: 3

Kupatila: 2

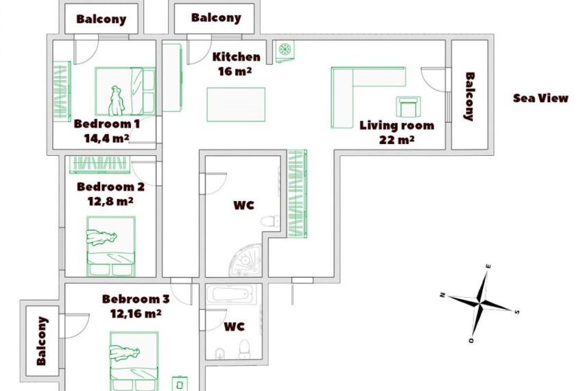
Nalazi se na trećem spratu stambene zgrade sa liftom i sastoji se iz hodnika, tri spavaće sobe od kojih jedna ima lično kupatilo, kupatila, dnevnog boravka sa kuhinjom i trpezarijom i četiri balkona.

Stan je opremljen novim i kvalitetnim nameštajem i tehnikom. U dvorištu se nalazi rampa i parking za stanare zgrade.

Vlasništvo je 1/1 i nema tereta i ograničenja.

Cijena: 180.000 €
KOntakt; +38267109063